UA
+38 0472 51 51 64
Черкассы
ПН-ПТ 9:00 - 18:00 ул. Одесская, 50, оф. 504
другой город
Войти
дизайн-студия интерьера

Гостевая комната для молодой пары в ЖК «Андорра»

Цена
0 грн.
-0%
0 грн.
Экономия 0 грн.
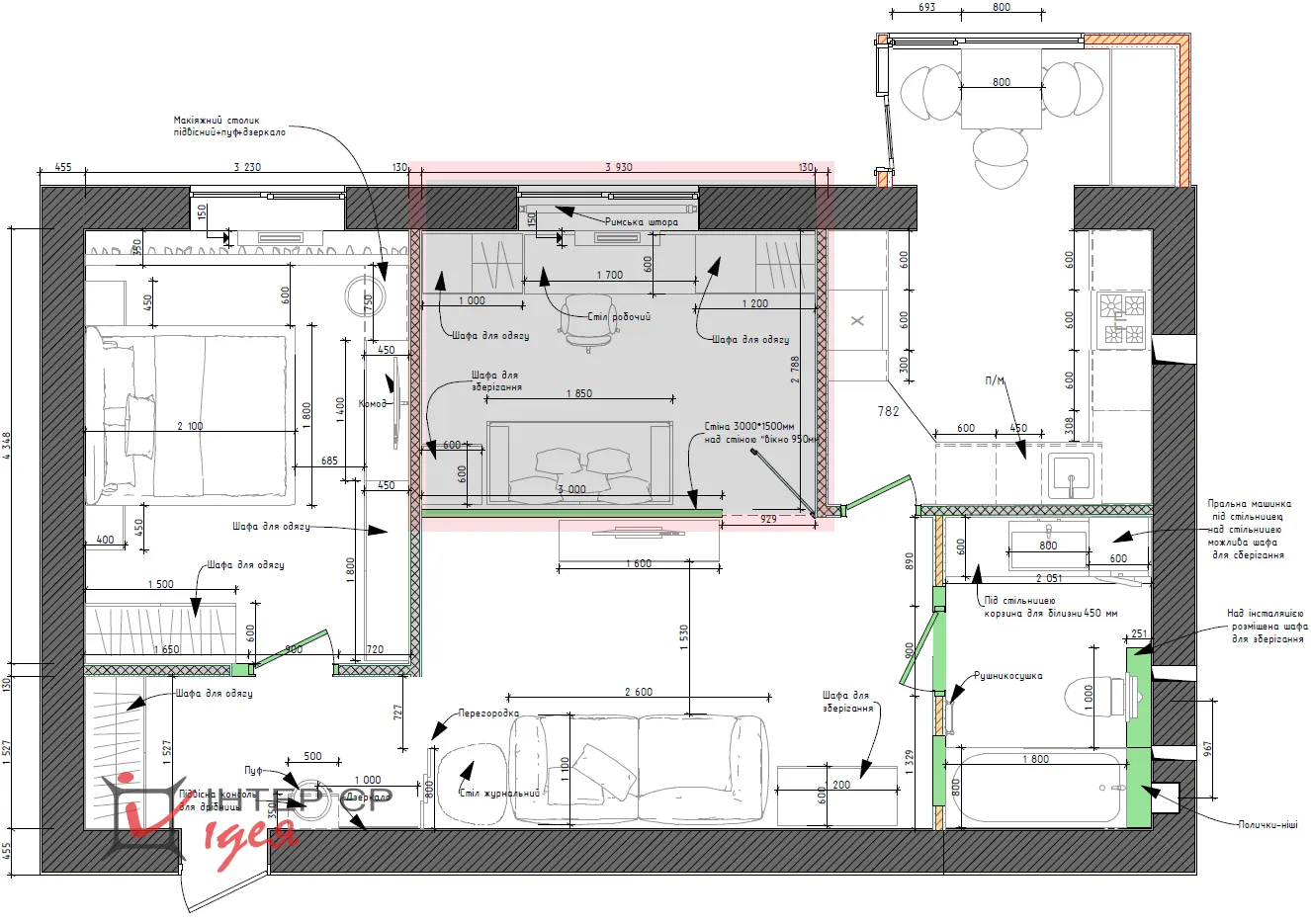
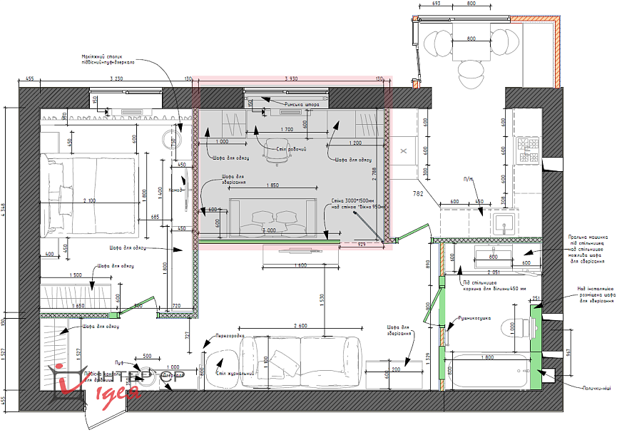
Перед нами стояла задача организовать пространство в двухкомнатной квартире ЖК «Андорра» (г. Черкассы) для молодой пары, обратившейся с четким видением будущего жилья. Одним из главных требований была функциональная планировка: спальня, будущая детская комната, гостиная, отдельная кухня и объединенный санузел.
Характеристики

Категория
Дата
Август 2025
Мансарда
Без мансарды
Площадь
11 м.кв
Описание
Исходная планировка предусматривала отдельные комнаты, но узкий и длинный коридор забирал ценную площадь. Заказчики попросили расширить прихожую за счет детской комнаты, и это стало первым шагом к трансформации пространства. Площадь всей квартиры составляет 67 м2, и каждый квадратный метр здесь продуман до деталей.

Особое внимание уделено организации гостиной, не имеющей прямого доступа к естественному свету. Чтобы избежать темного замкнутого пространства, мы предложили решение – перегородка с окном в стиле интерьерного остекления, позволяющая свету из кабинета проникать в гостиную. Это значительно улучшило атмосферу комнаты, сделав ее более светлой и визуально более просторной.

На этапе реализации детская комната была трансформирована в рабочий кабинет/гостиную. В интерьере преобладают сдержанные цвета, геометрические акценты и функциональная мебель. Для хранения использованы высокие шкафы с встроенными ручками, что создает ощущение целостности. Рабочая зона мужчины максимально эргономична – с качественным креслом, большим рабочим столом, естественным освещением и закрытыми системами хранения. Особую роль играет декор – фото семьи на стене придают тепло и индивидуальность. Мягкий раскладной диван позволяет использовать комнату в качестве гостевой при необходимости.

Материалы выбирались с учетом практичности, приятных на ощупь поверхностей и спокойного вида. Использованы матовые фасады шкафов, римская штора из мягкого текстиля, деревянные элементы в полу и мебели. Благодаря этому интерьер получился не только удобным в использовании, но и уютным.

Интерьер оформлен в стиле современного минимализма с нотками скандинавской простоты и легким оттенком индустриального стиля, подчеркиваемого стеклянной перегородкой с черной металлической рамой.
Отзыв клиента
Антон Котюх
Професіонали своєї справи, раджу до співпраці!
Отзыв дизайнера
Мне очень понравилось, как нам удалось соединить функциональность и эстетику в небольшом помещении. Особенно радует, что комната легко адаптируется к грядущим изменениям в жизни заказчиков.
Другие комнаты в этом проекте

На сайте студии Интерьер-Идея представлены исключительно работы наших дизайнеров.
Интерьер-Идея - дизайн интерьера в г. Черкассы, Черкасская область.